上海甘澜材料科技有限公司
地址:上海市崇明区长兴镇潘园公路2528号B幢1639室
电话:4000-177-739
射频导纳物位开关说明书
◇GLSPL 型电子线路采用了抗粘附电路,可以在探测真实物位的同时清除粘附和 悬挂在探头周围的假物位信号影响。
◇GLSPL 型根据射频导纳传感工作原理,可探测各种容器中物料的有(高位)或 无(低位))。它可以设置高位 或低位模式的故障报警。
◇GLSPL 型可检测任何工艺物料,例如:精炼油、汽油、导电泥浆等。
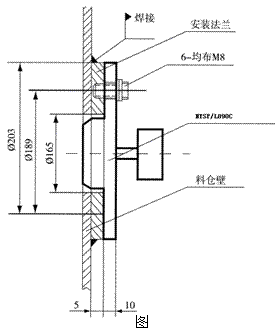
◇GLSPL? 型与 L86X? 型传感探头匹配。L863C? 是通用探头,L890C ?是平板探头,
也提供钢绳探头,具有 Teflon和不锈钢结构,它能用于高温、高压环境,液体、 粉体、大固体块料及腐蚀性物体。
1.技术参数
技 术 说 明
继电器容量:DPDT,额定 10A,115VA.C? 或 5A,220VA.C
延时:0~30秒连续可调
电源:220VA.C 或 24VDC 感应度:0.5pF 物料温度:-184℃~260℃
电路耐温:-40℃~80℃
失电保护:高低模式,现场可调 外壳:IP65,重型铸铝外壳
2.常用探头型号与外形尺寸图(单位:mm)
标准型 L863C(可适用于各种场合)
平板探头 L890C
(解决大块物料对棒探头的冲击)
?????????????????????????????????????????????????? 
柔性探头 L863WC(可用做输煤开关)
长度一般大于 2 米场合必须垂直安装
特短探头 L862C(可适用于各种 应用或用做堵煤开关)
????????????? 
※G 为探头保护套长度,S 为探头总长度,此两项也可根据用户要求任意加长、缩短。
安 装
1.检查
仔细地将 GLSPL 型射频导纳从包装中取出,并且检查是否有运输损坏。同时确认设备 和电源是否一致(如:220VAC 设备和 220VAC 电源) 2.电子线路面板各键说明(见图 1)

图一
3.安装
探头安装的标准方法是 NPT1″螺纹安装,也可采用法兰安装,可采用水平或垂直安装。 伸出容器外的尺寸参见(图二)。将探头的 NPT1″螺纹旋入器壁或容器顶部的 NPT ?接头(。建 议安装方法作参考见图三~图五)
?SHAPE? \* MERGEFORMAT
图二
注:
1.水平安装时,探头保护套长度 G 必须伸入到容口壁内
2.垂直安装时,探头总长 S 必须等于或大于控制点位置。

图四
GLSPL/L863C ?型射频导纳物位控制器安装建议图

图五
GLSPL/L863C ?型射频导纳物位控制器用于堵煤信号安装建议图
4.电子线路连接
松开图一上 2×M8? 安装电子线路螺丝 2 ?个,取下电子线路板,将导线拉入仪表
3/4NPT 仪表电气接口内(,见图 六)当导线穿过接线口后,放回电子线路“平”的一边对着接 线口。导线接入连接器,重新安装 2M8? 螺丝 2? 个 即可。
A).线路电源类型(115VA.C 或 230VA.C) 交流电源线路的连接:火线(H),中线(N) 和地线(G),接线端子板参照图一。如果导线没有标准的黑、白、 绿三种颜色,一定要仔细不要混淆导线。注:必须接地。
B).直流电源类(24VD.C)
24VDC 电源线路导线连接:原(H)端为-24V(+),原(N)端为公共端(-)和原(G) 端仍为地线(G),接线 端子板参见图一。注:必须接地。
C).控制继电器的连接
GLSPL 型继电器输出触点是 C 型,2 组双刀双掷,10A,115VAC,阻抗。轻型低电感负载 可用于螺线管式阀门或 报警。重型电感负载必须通过中间继电器来带动。详细数据见技术说 明部分继电器的触点。图七表示了 3? 个常 见的连接方法。
GLSPL控制器外形尺寸图

图六
A.出现故障情况报警打开???????????????????????? B.出现故障情况控制装置打开 控制继电器触点???????????????????????????????????????? 控制继电器触点

C.出现故障情况控制装置关闭

三种常见的点式物位控制功能图七
注意:
1.所有的应用均以正确连接故障报警开关为基础。
2.所有继电器触点均为“阀置”状态。
3.设备电源和报警/泵/阀门电源是分开的。
调 试
当进行调试时,请注意这些总的规则:
*将 2 个灵敏调节电位器顺时针旋转增加灵敏度,逆时针旋转减少灵敏度。
*当两个灵敏度控制调好后,绿色灯亮,表示探头上有“有”物料存在,红色灯亮,表示“无”
物料存在。
*安装方法有水平或垂直两种。为保证设备稳定工作应有 5 分钟热运动。
1.灵敏度的校正(参见图一和图八) A).对于一个没有水的空容器,调节细(F)灵 敏度控制到中间位置,然后慢慢调节粗(C)灵敏度直到状态指示灯 刚刚变红。重调细(F) 灵敏度控制线找到一个刚刚变红点,记下“空”的位置,如图 8 所示。然后,将探头 插入 物料重调细(F)灵敏度控制(不接触粗调灵敏度)刚好变为绿点,并记下它的位置。注意 两个记号的不 同,并且重调细(F)灵敏度控制到两个记号的中间位置。这就是一个完整 的调试过程。对于非水基工艺液体(不导电液体)最好的安装方法是垂直安装,当液体到 达一半时报警。 B).对于水基液体(导电液体)反时针调节灵敏度,因为水基液体容易测 量,只需碰到传感探头即可,这个过程 提供最大的抗粘附能力。这是个完整的调节过程。

图八
2.时间延时
GLSPL 包括 0-30 秒可调时间延时,有延时开/延时关模式(参见图一)。这种模式典型 的用处是消除控制继电器的“抖动”,或者控制循环循序。 开始时延时控制设为零(反时针 到底位置)。当用延时来消除继电器抖动时,仅要求旋转最小的角度。 延时将导致在工艺 物位控制点的上面或下面摆动,但平均物位仍等于控制点。超过量和不到量与延时比例有 关。
3.故障报警/(失电保护)模式选择 故障报警工作反映大多数主要的故障情况,包括 电源的故障,这将引起控制继电器释放电压。因此,继电器释放 电压的状态被称为“报警” 状态。这就意味着如果电源消失,也会发生报警。GLSPL 系列设备具有高位或地位 故障报 警。这个动作由靠近控制面板中央位置(延时调节左边)的一个小的跳接器完成。参见图 一。“H”位置显 示高位报警,“L”位置显示低位报警。
选型指南
|
GLSPL |
射频导纳物位开关 | ||||||||
|
1 |
24VDC |
供电方式 | |||||||
|
2 |
220VAC | ||||||||
|
A |
无延时(标准电路单元) |
时间延时 | |||||||
|
B |
带延时(0~30 秒可调) | ||||||||
|
1 |
一体式 |
仪表形式 | |||||||
|
2 |
分体式 | ||||||||
|
C |
螺纹连接 |
过程连接 | |||||||
|
D |
法兰连接 | ||||||||
|
1 |
120℃ |
工作温度 | |||||||
|
2 |
260℃ | ||||||||
|
3 |
800-1200℃ | ||||||||
|
1 |
标准型(L863C) |
电极形式 | |||||||
|
2 |
平板型(L890C) | ||||||||
|
3 |
钢索型(L863WC) | ||||||||
|
4 |
定制型(L862C) | ||||||||
|
X |
如:插入深度 |
其他选项 | |||||||
GLSPL-M 型 射频导纳物位变送器
一、 概 述
二线制射频料位变送器采用射频微三端信号处理技术测量贮罐内的物位,这种方法已获 得实践的充分证明。它是一种精确而独立的过程测量仪表。简而言之,利用探头与仓壁之间 形成的电容器对物料高度是否到达传感器探头的位置进行检测。二线制射频料位变送器的固 态电子线路将连续监测这一变化,并将这一变化与一个非常稳定的基准电路进行比较,然后 输出一个与物位成正比的精确而又独立的 4-20mA 电流信号。
二、 危险场所
二线制射频物位变送器的本安设计,如与经过认证的安全栅一起使用,可构成本质安全 系统,用于检测易燃介质。如与简单的数字盘装表一起使用,或将它接入复杂的控制系统, 二线制射频物位变送器还可用于贮量管理,多点报警及泵控制。
三、 产品特点
1、二线制
2、连续过程测量
3、适用危险场所
4、几乎任何物位都可检测
5、多种安装方式:卫生接头、螺纹、法兰
6、多种结构形式:分离型、整体型、抬高型
7、化学适用性极强的探头
8、多种多样的电极:刚性的、挠性的、带重锤的或带紧固装置的
四、 测量电极
二线制射频物位变送器采用 316 不锈钢测量电极,电极外面可根据不同需要,选择聚四 氟乙烯或聚氯乙烯护套。二线制射频物位变送器可用 3/4″NPT 接头安装,也可选用 1-1/4″ NPT 及法兰安装。刚性极棒长度可达 4175 毫米,挠性强式电极长度可达 30m。绳式电极的端 部可带裸的或有护套的重锤,用于介质无扰动的容器,对带搅拌的贮罐,绳式电极下端可带 紧固装置。二线制射频物位变送器的电子单元还可与电极分开安装,两者之间的最大距离为 6m,它主要用于高温或强振动场所。
五、 技术参数
1、电气参数
电源:15-32VDC(对本安系统,最大电 源电压为 27VDC)
输出:4-20mA 输出阻抗:450Ω@24VDC(视电压定)
阻尼:0-3 秒(用跨接器选择) 校准:调零和调满,带频率选择 被测电容范围:0-4000pf(名义值) 精度:±1%(介电常数恒定时) 防护等级:IP65 防爆等级:ExiaⅡCT5 本质安全型
ExdⅡBT4? 隔爆型 2、机械参数 外壳:铝合金外涂防腐聚脂漆
环境温度:-40℃-+49℃(抬高型可用于更高的温度)
3、电极参数
长度:由用户指定 A、B、M、N、P 型电极,最长 4175 毫米;
D、H、I 型电极,最长 30 米。
4、电极选件
A、D、E 型电极仅用于非导电介质。在玻璃纤维或带内衬的容器上使用时,应采用辅助 接地杆或同轴套筒(参考地)
|
电极型式 |
安装方式 |
材质 |
压力 |
温度 |
|
A |
3/4"NPT |
316S.S |
0.351MPa |
121℃ |
|
B |
3/4"NPT |
Teflon/S.S |
0.351MPa |
121℃ |
|
D |
11/4"NPT |
316S.S |
常压 |
121℃ |
|
E |
11/4"NPT |
Teflon/S.S |
常压 |
121℃ |
|
H |
11/4"NPT |
Teflon/S.S |
常压 |
121℃ |
|
I |
11/4"NPT |
Teflon/S.S |
0.351MPa |
121℃ |
|
M |
3/4"NPT |
PVC/S.S |
0.351MPa |
60℃ |
|
N |
1"卫生 |
Teflon/S.S |
0.351MPa |
121℃ |
|
P |
1"卫生 |
316S.S |
0.351MPa |
121℃ |
六、 应用注意事项
1、对导电性介质,必须选用带绝缘护套的电极.
2、介质温度高于 98℃时,应选用分离型或抬高型。
3、贮罐顶部空间有限的地方,请选用挠性电极。
4、带端部紧固装置的电极、贮罐应具有人孔,以便进入安装。
5、介质介电常数变化的场合,不推荐使用本仪表。
6、不受蒸汽或比重变化的影响。
7、非导电性粘附层不会引起问题。
七、 GLSPL-M 型 连续式射频导纳物位变送器选型标记

|
GLSPL |
-X |
X |
X |
X |
X |
X |
X |
X |



